Поймать размеры колпачка наладкой.
- suevov
- Сообщения: 286
- Зарегистрирован: 24 апр 2010, 10:41
- Благодарил (а): 81 раз
- Поблагодарили: 9 раз
Поймать размеры колпачка наладкой.
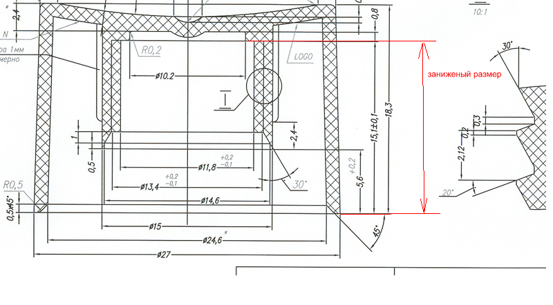
Запускаем новую форму 32 места, центральный горячеканальный впрыск. Используемый материал Moplen 500N аналог Липола А-7, НЕ можем поймать нужную высоту до запорного кольца. Т.е. получается размеры занижены. Как наладкой добиться нормальных размеров? Спасибо
-
Бор
- Сообщения: 384
- Зарегистрирован: 14 ноя 2008, 22:55
- Страна, Регион, Область: Россия
- Город: Москва-Подольск
- Откуда: Москва и Подмосковье
- Благодарил (а): 2 раза
- Поблагодарили: 7 раз
Re: Поймать размеры колпачка наладкой.
честно информации маловато. Я так понимаю колпачок с резьбой, наверное снимается срывом - может в этот момент и происходит деформация стенки и размер уходит? Или изделие просто недолитое, без нижней кромки?
В-С-Е-Г-Д-А
- Бегемот
- Сообщения: 2815
- Зарегистрирован: 03 окт 2009, 13:39
- Страна, Регион, Область: Россия
- Город: Владимир
- Откуда: Из Аршинцево, г. Керчь, Крым-Россия.
- Благодарил (а): 53 раза
- Поблагодарили: 166 раз
- Контактная информация:
Re: Поймать размеры колпачка наладкой.
Кажется, за счёт усадки материала размер не соответствует тому, что на пуансоне прессформы... Может изначально конструктивно заложен недостаточный процент усадки?
Или образцы были нормального размера?
Или образцы были нормального размера?
Бегемот!!! Ты меня не зли!!! ©Олька
Re: Поймать размеры колпачка наладкой.
попробуйте слегонца увеличить время выдержки под двлением, в этом случае изделие должно получиться более плотным и даст меньшую линейную усадку при охлаждении.
- Serjio
- Сообщения: 1844
- Зарегистрирован: 20 янв 2009, 20:54
- Откуда: Москва
- Благодарил (а): 1 раз
- Поблагодарили: 20 раз
Re: Поймать размеры колпачка наладкой.
Я так понял что Вы хотите термопластавтоматом порегулировать размер. :D
У меня был опыт. Я всё же решил перейти на материал с большей усадкой и у меня всё наладилось. :!:
Для Вашей задачи нужно иметь точный и стабильный ТПА. Вряд ли машина сделанная какими-то узкоглазыми подойдёт. :P
Если размер нужно уменьшить то нужно уменьшать дозирование в пределах объёма дожимающегося при выдержке под давлением. Тогда за счёт нескомпенсированного утяга размер уменьшится.
Но даже на хорошей и стабильной машине этот процесс может быть неустойчив.
Можно даже сделать запрограмированный недолив. Это ещё больше позволит уменьшить размер. Но скорее всего начнёт кромка искривляться.
Если размер увеличивать то нужно просто бороться с усадками как вы обычно делаете. Температура формы, дозирование, выдержка под давлением.
Можно вспенивателя попробовать осторожно добавить. 8) Я пробовал на эластичных материалах. Размер раза в 1,5 увеличивался.
На оба варианта самое надёжное - правельный материал.
Ой! А у вас форма 32 места! :shock:
Это значительно осложнит процесс.
А вообще если увеличивать размер то может просто знаки поточить. Скорее всего вы помучаетесь и так и сделаете. Будет хлопотно но надёжно.
У меня был опыт. Я всё же решил перейти на материал с большей усадкой и у меня всё наладилось. :!:
Для Вашей задачи нужно иметь точный и стабильный ТПА. Вряд ли машина сделанная какими-то узкоглазыми подойдёт. :P
Если размер нужно уменьшить то нужно уменьшать дозирование в пределах объёма дожимающегося при выдержке под давлением. Тогда за счёт нескомпенсированного утяга размер уменьшится.
Но даже на хорошей и стабильной машине этот процесс может быть неустойчив.
Можно даже сделать запрограмированный недолив. Это ещё больше позволит уменьшить размер. Но скорее всего начнёт кромка искривляться.
Если размер увеличивать то нужно просто бороться с усадками как вы обычно делаете. Температура формы, дозирование, выдержка под давлением.
Можно вспенивателя попробовать осторожно добавить. 8) Я пробовал на эластичных материалах. Размер раза в 1,5 увеличивался.
На оба варианта самое надёжное - правельный материал.
Ой! А у вас форма 32 места! :shock:
Это значительно осложнит процесс.
А вообще если увеличивать размер то может просто знаки поточить. Скорее всего вы помучаетесь и так и сделаете. Будет хлопотно но надёжно.
Успешной Вам переработки полимеров!
- Бегемот
- Сообщения: 2815
- Зарегистрирован: 03 окт 2009, 13:39
- Страна, Регион, Область: Россия
- Город: Владимир
- Откуда: Из Аршинцево, г. Керчь, Крым-Россия.
- Благодарил (а): 53 раза
- Поблагодарили: 166 раз
- Контактная информация:
Re: Поймать размеры колпачка наладкой.
Это единственное правильное решение, если радиальные размеры как то можно варьировать временем охлаждения, то линейные, увы(А вообще если увеличивать размер то может просто знаки поточить. Скорее всего вы помучаетесь и так и сделаете. Будет хлопотно но надёжно.
Бегемот!!! Ты меня не зли!!! ©Олька
Re: Поймать размеры колпачка наладкой.
Пробуя изменить (довести) размер регулировкой ТПА - изменятся и другие размеры. Логично доработать оснастку но в начале попробовать материал с другой усадкой. Оснастку обычно делают под материал вот и вспомни на каком запускались.
- Maks42
- Сообщения: 12562
- Зарегистрирован: 19 окт 2009, 11:40
- Страна, Регион, Область: Узбекистан
- Город: Ташкент
- Откуда: Калинин
- Благодарил (а): 2877 раз
- Поблагодарили: 3244 раза
- Контактная информация:
Re: Поймать размеры колпачка наладкой.
Как повысить усадку не знаю, а понизить можно введением нуклеатора или мелового концентрата.
- Serjio
- Сообщения: 1844
- Зарегистрирован: 20 янв 2009, 20:54
- Откуда: Москва
- Благодарил (а): 1 раз
- Поблагодарили: 20 раз
Re: Поймать размеры колпачка наладкой.
Почитав коллег думаю:
попробуйте пвозиться с материалом а как надоест точите знаки.
попробуйте пвозиться с материалом а как надоест точите знаки.
Успешной Вам переработки полимеров!
- Бегемот
- Сообщения: 2815
- Зарегистрирован: 03 окт 2009, 13:39
- Страна, Регион, Область: Россия
- Город: Владимир
- Откуда: Из Аршинцево, г. Керчь, Крым-Россия.
- Благодарил (а): 53 раза
- Поблагодарили: 166 раз
- Контактная информация:
Re: Поймать размеры колпачка наладкой.
Да... да... стеклонаполненые пробки для бутылок) Пришлите парочку))
Бегемот!!! Ты меня не зли!!! ©Олька
- suevov
- Сообщения: 286
- Зарегистрирован: 24 апр 2010, 10:41
- Благодарил (а): 81 раз
- Поблагодарили: 9 раз
Re: Поймать размеры колпачка наладкой.
Пришлось знаки корректировать. Большой разбег в разные стороны
Кто сейчас на конференции
Сейчас этот форум просматривают: нет зарегистрированных пользователей и 80 гостей