Да , я следил за темой. Вячеслав решит задачу, даже не сомневайтесь. Если не он , то кто же ? Мои ремонтные опыты довольно скучны. Подобные проблемы с движениями , замена нужного клапана обычно. А то и насоса . Но не ремонты ни того ни другого. Обычно того не стоит .IgorBuyuk писал(а): ↑14 окт 2024, 15:38Артур69 писал(а): ↑14 окт 2024, 15:04
Да , скорее всего. Нужны ещё манипуляции. Кстати, а какая необходимость с отводом работать ? Мы вообще этой функцией очень, очень редко пользуемся .
Понятно, хочется, чтобы всё работало, но вкладывать в это деньги, хоть и не большие , есть ли смысл. Не окупить, до следующей поломки.
Изначально причина в перегреве и как следствие разбалансировки машины. Общую симптоматику описывал.
А он (материальный цилиндр) ну совсем как черепаха ползет. Я думаю в секунду 3-5 мм.
ремонт KuASY 410/100
-
- Сообщения: 3455
- Зарегистрирован: 02 фев 2020, 10:56
- Страна, Регион, Область: Германия
- Город: NRW
- Благодарил (а): 1219 раз
- Поблагодарили: 1429 раз
Re: ремонт KuASY 410/100
- Рейтинг: 5%
Nein zum Krieg.
-
- Сообщения: 77
- Зарегистрирован: 24 янв 2023, 18:30
- Страна, Регион, Область: Казахстан, Алматинская область.
- Город: Алматы
- Благодарил (а): 28 раз
- Поблагодарили: 7 раз
Re: ремонт KuASY 410/100
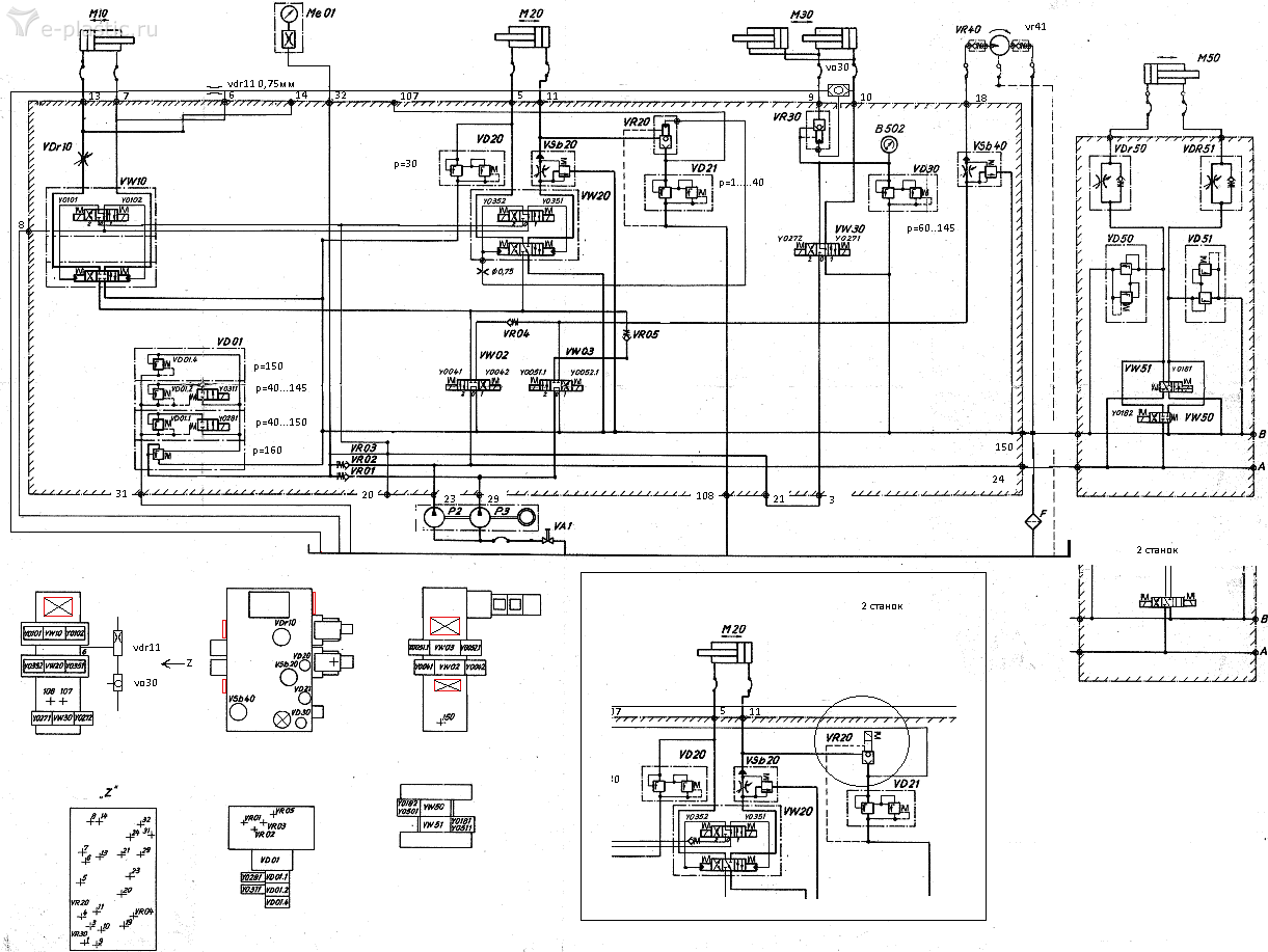
Вот тут не очень понял. С одной стороны "Жидкость из штоковой полости цилиндра идёт в боковой канал А... ", с другой стороны "Одновременно основной поток через открывшийся поршень идёт через канал А туда же к 271-272..."ЗЮМ писал(а): ↑10 окт 2024, 17:17Теперь за что отвечает каждая деталюшка? Известно что на этот момент на отвод сопла замок работает нормально. (Держит ли прижим сопла в момент впрыска не известно) Отследим ход жидкости при включении 272-го магнита. Масло поступает в распределитель 271-272 из Р в В далее прямиком в поршневую полость цилиндра и в Рх поршень управления, поршень нажимает на штангу сжимает пружину вытесняя масло в Тх. Штанга нажимает на шпульку ее хоботок открывая канал. Жидкость из штоковой полости цилиндра идёт в боковой канал А давит на внутреннюю большую фаску поршня стремясь его поднять и поднимает сжимая пружину и вытесняя масло из пружинной полости через открытый канал шпульки с хоботком в обходной канал L в сторону 271-272 в порт А и Т бак. Одновременно основной поток через открывшийся поршень идёт через канал А туда же к 271-272 в порт А и далее в бак. При открытии поршня замка мы видим левая шпулька с хоботком открыта а правая должна быть надёжно закрыта! Иначе поршень замка может не подняться или зависнуть приподнявшись и движения на отвод будет не нормальным.
Если я правильно понял, эти потоки встречные ведь?
В моем понимании это жидкость из гидроблока в канал А клапана и одновременно из канала А через поршень. Или я не правильно понял.
Последний раз редактировалось IgorBuyuk 14 окт 2024, 20:46, всего редактировалось 1 раз.
-
- Эксперт Гидравлик
- Сообщения: 5584
- Зарегистрирован: 24 окт 2012, 20:41
- Страна, Регион, Область: СССР
- Город: Деревня Малая Малявня
- Откуда: деревня МАЛАЯ МАЛЯВНЯ
- Благодарил (а): 602 раза
- Поблагодарили: 816 раз
Re: ремонт KuASY 410/100
Нового добавить ни чего не могу, только путать. Результат есть. Надо дальше приводить машину в порядок. Ждём других сопутствующих вопросов. И просьба не обрывать тему.
-
- Сообщения: 77
- Зарегистрирован: 24 янв 2023, 18:30
- Страна, Регион, Область: Казахстан, Алматинская область.
- Город: Алматы
- Благодарил (а): 28 раз
- Поблагодарили: 7 раз
Re: ремонт KuASY 410/100
ЗЮМ писал(а): ↑10 окт 2024, 17:48Со сбросом давления аналогично. Теперь представим подвод и набор удержание прижима сопла. Включается 271-й...жидкость и Р в порт А распреда далее к 502- му и предохранительном у клапану настройки усилия прижима сопла, далее в центр Р( красная) и L сверление к шпульке с хоботком открывает ее выпуская масло с пружинной полости давая возможность поршню открыться и пропустить масло в штоковую полость цилиндров после упора сопла в форму давление растет срабатывает 502 и 271-272 отключается. Замок захлопывается сохраняя давление в штоковой полости цилиндров. За счёт давления в боковой канал А давит в фаску стремясь поднять поршень но в то же время давит в мелкое отверстие создавая давление над поршнем в пружинной полости и из за разности площадей плюс пружинка он вынужден прижаться к седлу сохранять прижим сопла и ждать пока Поршнь Рх не нажмёт на шпульку с хоботком. А нажав на нее давление над поршнем соскочит в слив канал L и замок будет готов к открытию.
Здесь тоже есть вопросы. "... далее в центр Р( красная) и L сверление к шпульке с хоботком открывает ее...". Давлением масла что-ли хоботок откроет? В чем тогда смысл этого замка, если его откроет давление масла на него? Я думал этот замок должен открываться только штоком, на который давит поршень через канал Рх.
Я наверное не так понимаю эти процессы. У меня нет таких знаний как у вас. В гидравлике не все очевидно на первый взгляд, как я понимю.
-
- Эксперт Гидравлик
- Сообщения: 5584
- Зарегистрирован: 24 окт 2012, 20:41
- Страна, Регион, Область: СССР
- Город: Деревня Малая Малявня
- Откуда: деревня МАЛАЯ МАЛЯВНЯ
- Благодарил (а): 602 раза
- Поблагодарили: 816 раз
Re: ремонт KuASY 410/100
Согласен, сам в этом не уверен.IgorBuyuk писал(а): ↑14 окт 2024, 20:44ЗЮМ писал(а): ↑10 окт 2024, 17:48Со сбросом давления аналогично. Теперь представим подвод и набор удержание прижима сопла. Включается 271-й...жидкость и Р в порт А распреда далее к 502- му и предохранительном у клапану настройки усилия прижима сопла, далее в центр Р( красная) и L сверление к шпульке с хоботком открывает ее выпуская масло с пружинной полости давая возможность поршню открыться и пропустить масло в штоковую полость цилиндров после упора сопла в форму давление растет срабатывает 502 и 271-272 отключается. Замок захлопывается сохраняя давление в штоковой полости цилиндров. За счёт давления в боковой канал А давит в фаску стремясь поднять поршень но в то же время давит в мелкое отверстие создавая давление над поршнем в пружинной полости и из за разности площадей плюс пружинка он вынужден прижаться к седлу сохранять прижим сопла и ждать пока Поршнь Рх не нажмёт на шпульку с хоботком. А нажав на нее давление над поршнем соскочит в слив канал L и замок будет готов к открытию.
Здесь тоже есть вопросы. "... далее в центр Р( красная) и L сверление к шпульке с хоботком открывает ее...". Давлением масла что-ли хоботок откроет? В чем тогда смысл этого замка, если его откроет давление масла на него? Я думал этот замок должен открываться только штоком, на который давит поршень через канал Рх.
-
- Эксперт Гидравлик
- Сообщения: 5584
- Зарегистрирован: 24 окт 2012, 20:41
- Страна, Регион, Область: СССР
- Город: Деревня Малая Малявня
- Откуда: деревня МАЛАЯ МАЛЯВНЯ
- Благодарил (а): 602 раза
- Поблагодарили: 816 раз
Re: ремонт KuASY 410/100
Поясню -Отвод сопла: Логика понятна и сходится с физикой и механикой. Поршень управления жмёт на хоботок , замок открывается и выпускает жидкость из штоковой полости цилиндра. А при команде Подвод сопла: Замок открывается без нажима на хоботок и участия управляющего поршня. Входа выхода известны, каналы на чертеже. Об этом не каждый думает. И всегда получалось заставить его работать. Знал и понимал что вопросы будут. Поэтому и написал недопонимания 1% или больше. Дело не в процентах. Времени прошло много. Это вроде как оправдание. Думаю канал L типа дренаж он единый , сверление обходное выходит к хоботку и штанге- штоку. У штока зазорчик и через этот зазорчик связь с пружинной полостью поршня упр. И интрига остаётся с другой деталью с которой сопло ведёт себя наоборот. Вперёд быстро, назад медленно. Ну и отрадно, что усёк эти непонятки. Игорь у тебя с логикой порядок. Все у тебя должно получится. Все посты по делу. Вопрос висит. Тогда за счёт чего открывается замок при команде сопло вперёд. И каким образом вытесняется жидкость из полости над основным поршнем при его открытии.?
- Рейтинг: 5%
-
- Эксперт Гидравлик
- Сообщения: 5584
- Зарегистрирован: 24 окт 2012, 20:41
- Страна, Регион, Область: СССР
- Город: Деревня Малая Малявня
- Откуда: деревня МАЛАЯ МАЛЯВНЯ
- Благодарил (а): 602 раза
- Поблагодарили: 816 раз
Re: ремонт KuASY 410/100


-
- Эксперт Гидравлик
- Сообщения: 5584
- Зарегистрирован: 24 окт 2012, 20:41
- Страна, Регион, Область: СССР
- Город: Деревня Малая Малявня
- Откуда: деревня МАЛАЯ МАЛЯВНЯ
- Благодарил (а): 602 раза
- Поблагодарили: 816 раз
Re: ремонт KuASY 410/100
Однако получается что замок открывается не только штоком , по направлению потоков это очевидно.IgorBuyuk писал(а): ↑14 окт 2024, 20:44ЗЮМ писал(а): ↑10 окт 2024, 17:48Со сбросом давления аналогично. Теперь представим подвод и набор удержание прижима сопла. Включается 271-й...жидкость и Р в порт А распреда далее к 502- му и предохранительном у клапану настройки усилия прижима сопла, далее в центр Р( красная) и L сверление к шпульке с хоботком открывает ее выпуская масло с пружинной полости давая возможность поршню открыться и пропустить масло в штоковую полость цилиндров после упора сопла в форму давление растет срабатывает 502 и 271-272 отключается. Замок захлопывается сохраняя давление в штоковой полости цилиндров. За счёт давления в боковой канал А давит в фаску стремясь поднять поршень но в то же время давит в мелкое отверстие создавая давление над поршнем в пружинной полости и из за разности площадей плюс пружинка он вынужден прижаться к седлу сохранять прижим сопла и ждать пока Поршнь Рх не нажмёт на шпульку с хоботком. А нажав на нее давление над поршнем соскочит в слив канал L и замок будет готов к открытию.
Здесь тоже есть вопросы. "... далее в центр Р( красная) и L сверление к шпульке с хоботком открывает ее...". Давлением масла что-ли хоботок откроет? В чем тогда смысл этого замка, если его откроет давление масла на него? Я думал этот замок должен открываться только штоком, на который давит поршень через канал Рх.
Я наверное не так понимаю эти процессы. У меня нет таких знаний как у вас. В гидравлике не все очевидно на первый взгляд, как я понимю.
-
- Эксперт Гидравлик
- Сообщения: 5584
- Зарегистрирован: 24 окт 2012, 20:41
- Страна, Регион, Область: СССР
- Город: Деревня Малая Малявня
- Откуда: деревня МАЛАЯ МАЛЯВНЯ
- Благодарил (а): 602 раза
- Поблагодарили: 816 раз
Re: ремонт KuASY 410/100
https://atkes-ru.turbopages.org/turbo/a ... -dejstviya Вот почему я и предложил перейти на другой замок. Уж слишком много у родного уязвимых мест. Что будет часто беспокоить.
- Вложения
-
- max_g360_c12_r16x9_pd20.jpeg (11.92 КБ) 3550 просмотров
-
- Эксперт Гидравлик
- Сообщения: 5584
- Зарегистрирован: 24 окт 2012, 20:41
- Страна, Регион, Область: СССР
- Город: Деревня Малая Малявня
- Откуда: деревня МАЛАЯ МАЛЯВНЯ
- Благодарил (а): 602 раза
- Поблагодарили: 816 раз
Re: ремонт KuASY 410/100
Ещё раз, понятно лишь одно точно: В перед сопло, замок работает как обычный обратный клапан. Сопло назад замок по управлению.
-
- Сообщения: 77
- Зарегистрирован: 24 янв 2023, 18:30
- Страна, Регион, Область: Казахстан, Алматинская область.
- Город: Алматы
- Благодарил (а): 28 раз
- Поблагодарили: 7 раз
Re: ремонт KuASY 410/100
Вчера еще раз поковырялся в этой либо в другой скинутой вами ветке. И там в одном из сообщений, кем то было написано что у него во время впрыска 271 тоже срабатывает по циклограме. Я вспомнил, что у меня вроде так же. Сегодня перепроверил, да 351 и 271 вместе. Абсолютно прямая связь между давлением в этих цилиндрах. Открыл циклограму и из того, что понял в момент впрыска 271 не должен включаться.ЗЮМ писал(а): ↑10 окт 2024, 17:09Перечитав, вспомнились некоторые нюансы по логике работы Vr30. Каналы обозначил я верно. Резкость хорошая в ссылке если кликнуть на увеличение картинок.ЗЮМ писал(а): ↑10 окт 2024, 11:56Пересчитываем тему:injection-molding-machines-need-in-repa ... 21661.html Каша ещё та.
Функцию прижима должен гарантировать преславутый замок вр 30.
-
- Эксперт Гидравлик
- Сообщения: 5584
- Зарегистрирован: 24 окт 2012, 20:41
- Страна, Регион, Область: СССР
- Город: Деревня Малая Малявня
- Откуда: деревня МАЛАЯ МАЛЯВНЯ
- Благодарил (а): 602 раза
- Поблагодарили: 816 раз
Re: ремонт KuASY 410/100
Дас. Был у нас спор с электронщиком: Он говорит должен 271-й вместе включаться с впрысковым.Я говорю нет, не должен. Доказательство мое. На прижим сопла есть регулировка прижима сопла - предохранительный клапан. И на впрыск есть предохранительный клапан. То есть если мы установим давление прижима сопла допустим не большое 50. То на впрыске мы не получим больше 50-ти. И на оборот, снизив давление впрыска, не получим выше прижим сопла. Параллельно они работать не могут, не будет независимой настройки друг от друга. Абсурд? Да. Но убедить не смог. Ну и ладно. Кончно, Vr30 в идеале должен держать минимум до конца набора материала, максимум пока не поступит команда на открытие замка. Некоторые и так работают. Но тогда что бы получить полный маневр на впрыске, нужно прижим сопла отрегулировать на максимум.
- Рейтинг: 5%
-
- Сообщения: 77
- Зарегистрирован: 24 янв 2023, 18:30
- Страна, Регион, Область: Казахстан, Алматинская область.
- Город: Алматы
- Благодарил (а): 28 раз
- Поблагодарили: 7 раз
Re: ремонт KuASY 410/100
ЗЮМ писал(а): ↑15 окт 2024, 13:57Дас. Был у нас спор с электронщиком: Он говорит должен 271-й вместе включаться с впрысковым.Я говорю нет, не должен. Доказательство мое. На прижим сопла есть регулировка прижима сопла - предохранительный клапан. И на впрыск есть предохранительный клапан. То есть если мы установим давление прижима сопла допустим не большое 50. То на впрыске мы не получим больше 50-ти. И на оборот, снизив давление впрыска, не получим выше прижим сопла. Параллельно они работать не могут, не будет независимой настройки друг от друга. Абсурд? Да. Но убедить не смог. Ну и ладно. Кончно, Vr30 в идеале должен держать минимум до конца набора материала, максимум пока не поступит команда на открытие замка. Некоторые и так работают. Но тогда что бы получить полный маневр на впрыске, нужно прижим сопла отрегулировать на максимум.
Да вот, собственно циклограма. Я не гарантирую, но тут вроде все очевидно. Режим автомат, верхняя линия материальный цилиндр. При достижении S4026 (конец защиты пресс формы) включится 271,далее все процедуры и в момент впрыска он отключен.
Также попросил видео работы клапанов, у знакомых. Подтверждает оно, то что я написал выше.
Кто то заморочился и переписал программу. Вопрос зачем?
Точно не от не х делать. Такие опнрации не делают кто попадо, где попало и как попало. Т е была причино-следственная связь. Одно могу сказать. Во время впрыска снял фишку с 271 и сырью в бок выдавило между литником и носиком, хотя так не подливает. Вывод:
Не держит замок и/или очень криво стоит мат цилиндр.
- Вложения
-
- IMG-20241015-WA0054.jpg (42.44 КБ) 3439 просмотров
-
- Эксперт Гидравлик
- Сообщения: 5584
- Зарегистрирован: 24 окт 2012, 20:41
- Страна, Регион, Область: СССР
- Город: Деревня Малая Малявня
- Откуда: деревня МАЛАЯ МАЛЯВНЯ
- Благодарил (а): 602 раза
- Поблагодарили: 816 раз
Re: ремонт KuASY 410/100
Держит замок или не держит проверить просто. 1) В наладке закрываем форму. Подводим сопло до упора, отпускаем кнопку. Штоки, видно визуально натягиваются и стоят. Значит держит.Если не держит они слегка провиснут и штоки сдадут чуть назад. Значит не держит. Или манжеты в цилиндрах или замок. 2) Давление прижима в цилиндрах какое мы его не видим ( слепая зона) Мы делаем так: Либо в разрыв магистрали между замком и цилиндрами ставим манометр. И сразу видно как ведёт себя сила и давление прижима сопла. Либо ставим манометр непосредственно на цилиндр у некоторых пробки бывают. Заворачиваем переходник с манометром и оставляем его на постоянно. Либо сверлим переднию крышку сверлом режем резьбу переходник с манометром. Удобно наблюдать как падает давление. Где-то фотки есть этих мероприятий. Для чего врезали манометры? Во первых для себя и диагностики. Во вторых что бы доказать начальству, наладчику, технолога, что гидравлика в порядке. А сопло и обогревы заливает, дымит по вине сопла и литниковой втулки. Плохой контакт.
-
- Эксперт Гидравлик
- Сообщения: 5584
- Зарегистрирован: 24 окт 2012, 20:41
- Страна, Регион, Область: СССР
- Город: Деревня Малая Малявня
- Откуда: деревня МАЛАЯ МАЛЯВНЯ
- Благодарил (а): 602 раза
- Поблагодарили: 816 раз
Re: ремонт KuASY 410/100
Теперь что касается перепрограммирования. Это дело рук не немцев. Это следствие перекидок плат с других машин при поисках причин неисправностей. Либо умеючи стирается информация с микросхем и пишется новая. Да грешили этим иногда при модернизации, переделки чего либо по нашей просьбе прописывали кусок циклограммы по хотелкам гидравликов. А здесь В таком случае давление прижима сопла подчиняется системному давлению и его копирует. Режим автомат: Сопло уперлось набрало давление 271 остался включенным, сработало реле давления, пошел впрыск ( пока форма полупустая) давление впрыска не высокое и давление сопла снижается, затем по мере заполнения формы, давление впрыска растет, растет и прижим сопла, встав на выдержку под давлением, на таком же давлении и прижим сопла. В момент набора сырья прижим сопла практически такой какое давление на входе в гидромотор 50-70. В принципе так и работают многие. А куда деваться? Кто то втыкает проволоку или отвёртку если есть во что упереть в 271 оставляя сопло под играющим давлением. Главное форму покрепче закрепить. Кто-то параллелит 271 и 351. Реле времени вешают. Всякого насмотрелись. Но это не вяжется с гидросхемой. Все это не от хорошей жизни на местах. Ну а когда замок исправен, манжеты не сифонят то и необходимости в этих соплях нет. Ведь тогда подпитки давлением в цилиндры нет. Масло как воздух в колесе замкнуто под давлением. А жидкость штука такая, убрать пару см кубических из запертого объема и тю тю давление кончилось. Вот и заставляют 271 быть включенным что бы обеспечить подпитку системным давлением.
-
- Сообщения: 77
- Зарегистрирован: 24 янв 2023, 18:30
- Страна, Регион, Область: Казахстан, Алматинская область.
- Город: Алматы
- Благодарил (а): 28 раз
- Поблагодарили: 7 раз
Re: ремонт KuASY 410/100
ЯсноЗЮМ писал(а): ↑15 окт 2024, 17:10Теперь что касается перепрограммирования. Это дело рук не немцев. Это следствие перекидок плат с других машин при поисках причин неисправностей. Либо умеючи стирается информация с микросхем и пишется новая. Да грешили этим иногда при модернизации, переделки чего либо по нашей просьбе прописывали кусок циклограммы по хотелкам гидравликов. А здесь В таком случае давление прижима сопла подчиняется системному давлению и его копирует. Режим автомат: Сопло уперлось набрало давление 271 остался включенным, сработало реле давления, пошел впрыск ( пока форма полупустая) давление впрыска не высокое и давление сопла снижается, затем по мере заполнения формы, давление впрыска растет, растет и прижим сопла, встав на выдержку под давлением, на таком же давлении и прижим сопла. В момент набора сырья прижим сопла практически такой какое давление на входе в гидромотор 50-70. В принципе так и работают многие. А куда деваться? Кто то втыкает проволоку или отвёртку если есть во что упереть в 271 оставляя сопло под играющим давлением. Главное форму покрепче закрепить. Кто-то параллелит 271 и 351. Реле времени вешают. Всякого насмотрелись. Но это не вяжется с гидросхемой. Все это не от хорошей жизни на местах. Ну а когда замок исправен, манжеты не сифонят то и необходимости в этих соплях нет. Ведь тогда подпитки давлением в цилиндры нет. Масло как воздух в колесе замкнуто под давлением. А жидкость штука такая, убрать пару см кубических из запертого объема и тю тю давление кончилось. Вот и заставляют 271 быть включенным что бы обеспечить подпитку системным давлением.
-
- Эксперт Гидравлик
- Сообщения: 5584
- Зарегистрирован: 24 окт 2012, 20:41
- Страна, Регион, Область: СССР
- Город: Деревня Малая Малявня
- Откуда: деревня МАЛАЯ МАЛЯВНЯ
- Благодарил (а): 602 раза
- Поблагодарили: 816 раз
Re: ремонт KuASY 410/100
Откопал в базе. Схемы 410/100 и 400/100. Раньше как то не сравнивал в чем разница.Делал что видел по факту и грешил на разные сборки стран тогдашнего СЭВ. Это про обвязку прижима сопла Полноценную и Не полноценную. Качество вроде получше в сравнении с другой жёлтого цвета. Вообще то верхняя это вроде как 400/100. Насос один не дорисован откуда она вылезла ? Ну да ладно. Все нужно по факту.
-
- Эксперт Гидравлик
- Сообщения: 5584
- Зарегистрирован: 24 окт 2012, 20:41
- Страна, Регион, Область: СССР
- Город: Деревня Малая Малявня
- Откуда: деревня МАЛАЯ МАЛЯВНЯ
- Благодарил (а): 602 раза
- Поблагодарили: 816 раз
Re: ремонт KuASY 410/100
С вашего позволения, экспресс галерея как реализован прижим сопла разных фирм Мира:
-
- Эксперт Гидравлик
- Сообщения: 5584
- Зарегистрирован: 24 окт 2012, 20:41
- Страна, Регион, Область: СССР
- Город: Деревня Малая Малявня
- Откуда: деревня МАЛАЯ МАЛЯВНЯ
- Благодарил (а): 602 раза
- Поблагодарили: 816 раз
Re: ремонт KuASY 410/100
Китай. Гидрозамок не управляемый. Электромагнит в момент впрыска включен. При снижении давления на старте впрыска в системе замок V13 закрывается.
-
- Эксперт Гидравлик
- Сообщения: 5584
- Зарегистрирован: 24 окт 2012, 20:41
- Страна, Регион, Область: СССР
- Город: Деревня Малая Малявня
- Откуда: деревня МАЛАЯ МАЛЯВНЯ
- Благодарил (а): 602 раза
- Поблагодарили: 816 раз
Re: ремонт KuASY 410/100
Всего не разместить.Последняя Негрибосси 60-70х годов выпуска. Тут только за счёт 44 ( все каналы закрыты)и у древней Негрибосси 134 схема ( А и Р закрыто В в сливе). Либо когда включен подпитка системным давлением. Как видим из этого разнообразия только серьезные бренды делают это надёжно. Остальной бюджетный вариант обходятся не управляемыми замками. Но они стоят между распределителем и баком. На это все. Инфа к вопросу прижима сопла.
-
- Эксперт Гидравлик
- Сообщения: 5584
- Зарегистрирован: 24 окт 2012, 20:41
- Страна, Регион, Область: СССР
- Город: Деревня Малая Малявня
- Откуда: деревня МАЛАЯ МАЛЯВНЯ
- Благодарил (а): 602 раза
- Поблагодарили: 816 раз
Re: ремонт KuASY 410/100
Последняя Ниссей Япония. Замок в канале В. Модульный. Вот так можно и сделать именно при такой обвязке как у Игоря. Только замок в канале А. Односторонний.
-
- Эксперт Гидравлик
- Сообщения: 5584
- Зарегистрирован: 24 окт 2012, 20:41
- Страна, Регион, Область: СССР
- Город: Деревня Малая Малявня
- Откуда: деревня МАЛАЯ МАЛЯВНЯ
- Благодарил (а): 602 раза
- Поблагодарили: 816 раз
Re: ремонт KuASY 410/100
Интересный экземпляр клон 400/100 прислали. Здесь правильно линия L прочерчена в слив Г31. Умели копировать если хотели. До сих пор работает. Насосы поставили Елецкие копия Хмельницкого варианта.
- Рейтинг: 5%
Кто сейчас на конференции
Сейчас этот форум просматривают: нет зарегистрированных пользователей и 6 гостей