Манометр с давлением расплава (корейский)
-
Hazard
- Сообщения: 147
- Зарегистрирован: 15 мар 2014, 07:44
- Страна, Регион, Область: Среднеазиатское государство
- Город: Тёплый
- Благодарил (а): 10 раз
- Поблагодарили: 2 раза
Манометр с давлением расплава (корейский)
Доброго времени суток - кто может подсказать как решить след проблему.
На нашем корейце Myung-IL сломался манометр с датчиком давления расплава. Зверорукие рабочие конечно тоже приложили к этому руки...
Марка его непонятна - искал отдельно не нашел. Обратился к корейцам - жестоко зарядили цену.
Начал искать аналоги - появился вопрос с размерами самого датчика и его монтажом ...
Есть ли производители, которые могут размеры под заказ сделать (или имеют серийны размеры те же?)
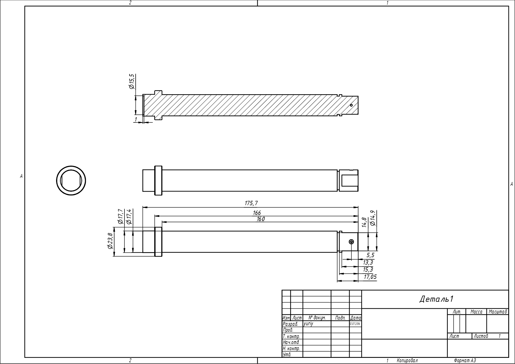
Собственно чертеж - это сам датчик расплава
На нашем корейце Myung-IL сломался манометр с датчиком давления расплава. Зверорукие рабочие конечно тоже приложили к этому руки...
Марка его непонятна - искал отдельно не нашел. Обратился к корейцам - жестоко зарядили цену.
Начал искать аналоги - появился вопрос с размерами самого датчика и его монтажом ...
Есть ли производители, которые могут размеры под заказ сделать (или имеют серийны размеры те же?)
Собственно чертеж - это сам датчик расплава
-
Pavel Brady
- Сообщения: 71
- Зарегистрирован: 31 окт 2014, 10:58
- Страна, Регион, Область: Россия
- Город: СПБ
- Благодарил (а): 4 раза
- Поблагодарили: 2 раза
Re: Манометр с давлением расплава (корейский)
Да уж, неприятная проблема. года 4 назад у меня такая же была. если трубку чуть перегнуть-пережать, то манометр выходит из строя. я тогда никакого аналога не искал,сразу заказал у корейцев. на сколько я помню цена вопроса - 400 долларов
-
Hazard
- Сообщения: 147
- Зарегистрирован: 15 мар 2014, 07:44
- Страна, Регион, Область: Среднеазиатское государство
- Город: Тёплый
- Благодарил (а): 10 раз
- Поблагодарили: 2 раза
Re: Манометр с давлением расплава (корейский)
они просят теперь 520$
похожее нашел в Китае за 220 ... правда размеры посадочные другие ... возьмем поменьше, затем сверху что-то типа "гильзы" выточим
похожее нашел в Китае за 220 ... правда размеры посадочные другие ... возьмем поменьше, затем сверху что-то типа "гильзы" выточим
-
Figaro
- Сообщения: 2183
- Зарегистрирован: 27 апр 2013, 02:27
- Страна, Регион, Область: Владимирская обл.
- Город: Владимир
- Благодарил (а): 772 раза
- Поблагодарили: 552 раза
Re: Манометр с давлением расплава (корейский)
https://m.aliexpress.com/item/326773601 ... y#autostayHazard писал(а):они просят теперь 520$
похожее нашел в Китае за 220 ... правда размеры посадочные другие ... возьмем поменьше, затем сверху что-то типа "гильзы" выточим
Возьмите электронный ...
-
Vitan
- Сообщения: 41
- Зарегистрирован: 04 май 2016, 07:12
- Страна, Регион, Область: Россия Моск. обл.
- Город: Видное
- Благодарил (а): 18 раз
- Поблагодарили: 2 раза
Re: Манометр с давлением расплава (корейский)
Здравствуйте! Объясните не просвещенному, такой манометр показывает давление массы в гильзе? На подобии как манометр на ДВС автомобиля, показывает давления масла?
-
Figaro
- Сообщения: 2183
- Зарегистрирован: 27 апр 2013, 02:27
- Страна, Регион, Область: Владимирская обл.
- Город: Владимир
- Благодарил (а): 772 раза
- Поблагодарили: 552 раза
Re: Манометр с давлением расплава (корейский)
Обычно манометр ставится в адаптере и измеряет давление расплава.
-
MarinoBold
- Сообщения: 9
- Зарегистрирован: 29 дек 2016, 19:25
- Страна, Регион, Область: Россия
- Город: Москва
- Благодарил (а): 0
- Поблагодарили: 1 раз
Re: Манометр с давлением расплава (корейский)
электронные быстро из строя выходят. Лучше механический, по собственному опыту говорю
-
Korobko
- Сообщения: 3
- Зарегистрирован: 05 янв 2017, 12:59
- Страна, Регион, Область: Russia
- Город: Moscow
- Благодарил (а): 0
- Поблагодарили: 0
Re: Манометр с давлением расплава (корейский)
Конечно должен быть, может у вас там давление низкое на впрыске, вот и не работает как надо. Можно вообще напоромер поставить.
-
Figaro
- Сообщения: 2183
- Зарегистрирован: 27 апр 2013, 02:27
- Страна, Регион, Область: Владимирская обл.
- Город: Владимир
- Благодарил (а): 772 раза
- Поблагодарили: 552 раза
Re: Манометр с давлением расплава (корейский)
Это что-то новенькое.Korobko писал(а): Можно вообще напоромер поставить.
Кто сейчас на конференции
Сейчас этот форум просматривают: нет зарегистрированных пользователей и 2 гостя