Как сделать пропорциональное регулирование противодавления на китайском тпа
-
ЗЮМ
- Эксперт Гидравлик
- Сообщения: 5718
- Зарегистрирован: 24 окт 2012, 20:41
- Страна, Регион, Область: СССР
- Город: Деревня Малая Малявня
- Откуда: деревня МАЛАЯ МАЛЯВНЯ
- Благодарил (а): 610 раз
- Поблагодарили: 834 раза
Re: Tederik TRX 140 (насколько мне кажется) помогите с восстановлением
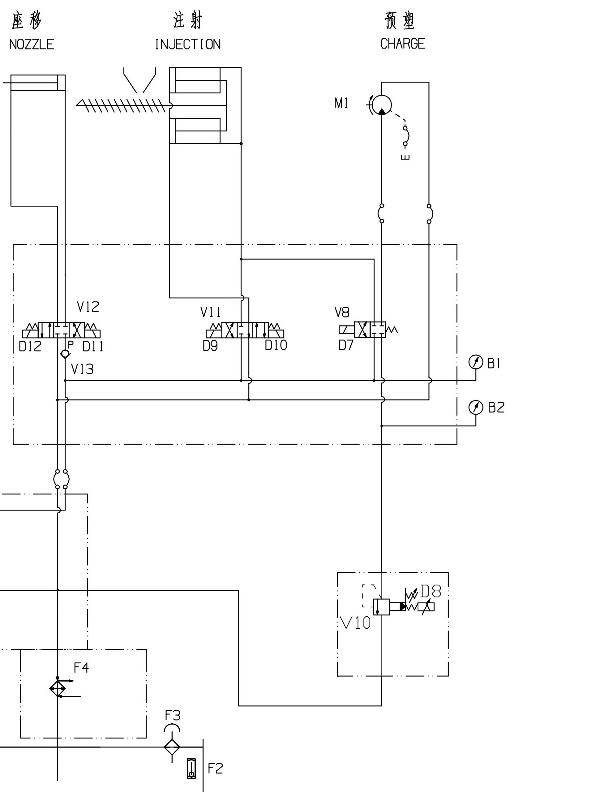
По поводу комплектации да. О прапорциональнике: Второй за загрузку говоришь отвечает. Но он простой не пропорциональный они внешне отличаются. Я говорю о том если второго такого нет как на фото. То этот впрыск-давление.
-
Дмитрий Андреев
- Сообщения: 173
- Зарегистрирован: 06 мар 2017, 09:00
- Страна, Регион, Область: Украина, Харьков
- Город: Комсомольское/Слобожанское
- Благодарил (а): 50 раз
- Поблагодарили: 15 раз
Re: Tederik TRX 140 (насколько мне кажется) помогите с восстановлением
За впрыск должен отвечать двойной, он больше по размеру.ЗЮМ писал(а): 25 ноя 2019, 21:22 По поводу комплектации да. О прапорциональнике: Второй за загрузку говоришь отвечает. Но он простой не пропорциональный они внешне отличаются. Я говорю о том если второго такого нет как на фото. То этот впрыск-давление.
Двойной : впрыск-декомпрессия.
Вот на этом примере покажу.
Я не работаю волшебником...
Я только учусь
Я только учусь
-
ЗЮМ
- Эксперт Гидравлик
- Сообщения: 5718
- Зарегистрирован: 24 окт 2012, 20:41
- Страна, Регион, Область: СССР
- Город: Деревня Малая Малявня
- Откуда: деревня МАЛАЯ МАЛЯВНЯ
- Благодарил (а): 610 раз
- Поблагодарили: 834 раза
Re: Tederik TRX 140 (насколько мне кажется) помогите с восстановлением
Вы разницу между пропорциональной катушкой и простой ПОНИМАЕТЕ? общим понятно На фото прапорциональник подпора. А скорость и давление впрыска работает от Основных прапорциональников расположенных на блоке нагрузки. То что ты стрелками показал ЭТО РАСПРЕДЕЛИТЕЛЬ гидравлический. Не ищи второго такого там нет. Короче так можно гадать до скончания века. Документацию ищите, покупайте, летите в Китай, в представительство, в Стерлиткомак к Сергею.
Последний раз редактировалось ЗЮМ 25 ноя 2019, 21:51, всего редактировалось 1 раз.
-
Дмитрий Андреев
- Сообщения: 173
- Зарегистрирован: 06 мар 2017, 09:00
- Страна, Регион, Область: Украина, Харьков
- Город: Комсомольское/Слобожанское
- Благодарил (а): 50 раз
- Поблагодарили: 15 раз
Re: Tederik TRX 140 (насколько мне кажется) помогите с восстановлением
Получается, что нетЗЮМ писал(а): 25 ноя 2019, 21:41 Вы разницу между пропорциональной катушкой и простой ПОНИМАЕТЕ? общим понятно На фото прапорциональник подпора. А скорость и давление впрыска работает от Основных прапорциональников расположенных на блоке нагрузки. Не ищи второго такого там нет.
Я не работаю волшебником...
Я только учусь
Я только учусь
-
ЗЮМ
- Эксперт Гидравлик
- Сообщения: 5718
- Зарегистрирован: 24 окт 2012, 20:41
- Страна, Регион, Область: СССР
- Город: Деревня Малая Малявня
- Откуда: деревня МАЛАЯ МАЛЯВНЯ
- Благодарил (а): 610 раз
- Поблагодарили: 834 раза
Re: Tederik TRX 140 (насколько мне кажется) помогите с восстановлением
Больше я не нужен. И больше за душой у меня ни чего нет, и вообще живу я по доверенности
А еще у вас в Харькове ВЕТАЛЛ живет классный спец и у него на балконе кусок памятника от Ленина заныкан как сувенир.( просто так вспомнил)
- За это сообщение автора ЗЮМ поблагодарил:
- Дмитрий Андреев
- Рейтинг: 5%
-
Дмитрий Андреев
- Сообщения: 173
- Зарегистрирован: 06 мар 2017, 09:00
- Страна, Регион, Область: Украина, Харьков
- Город: Комсомольское/Слобожанское
- Благодарил (а): 50 раз
- Поблагодарили: 15 раз
Re: Tederik TRX 140 (насколько мне кажется) помогите с восстановлением
Так показалось.
Давление впрыска - 160 бар., даже 165 мм.
Высота П/Ф 180-460 мм.
Максимальное открытие формы - 425 мм
Диаметр шнека - 40 мм.
Расстояние между колон - 450 х 450 по моему.
Это все, что могу сказать, завтра еще просмотрю.
Эти параметры подходят к Тедерик 150..... Частично.
Последний раз редактировалось Дмитрий Андреев 25 ноя 2019, 22:19, всего редактировалось 1 раз.
Я не работаю волшебником...
Я только учусь
Я только учусь
-
Дмитрий Андреев
- Сообщения: 173
- Зарегистрирован: 06 мар 2017, 09:00
- Страна, Регион, Область: Украина, Харьков
- Город: Комсомольское/Слобожанское
- Благодарил (а): 50 раз
- Поблагодарили: 15 раз
Re: Tederik TRX 140 (насколько мне кажется) помогите с восстановлением
Забавно, спасибо еще раз.ЗЮМ писал(а): 25 ноя 2019, 22:12 Больше я не нужен. И больше за душой у меня ни чего нет, и вообще живу я по доверенностиА еще у вас в Харькове ВЕТАЛЛ живет классный спец и у него на балконе кусок памятника от Ленина заныкан как сувенир.( просто так вспомнил)
Я не работаю волшебником...
Я только учусь
Я только учусь
-
ЗЮМ
- Эксперт Гидравлик
- Сообщения: 5718
- Зарегистрирован: 24 окт 2012, 20:41
- Страна, Регион, Область: СССР
- Город: Деревня Малая Малявня
- Откуда: деревня МАЛАЯ МАЛЯВНЯ
- Благодарил (а): 610 раз
- Поблагодарили: 834 раза
Re: Tederik TRX 140 (насколько мне кажется) помогите с восстановлением
Надо сравнить по наличию аппаратуры . Может они с твоим невидимкой похожи? Спасибо, время скоротал отлично. И стал немного умнее или дурнее. Пока не разобрался. Как то повода не было про хитрую загрузку узнать. В моей практике такого не встречалось. Всегда обычная загрузка в одну дуду. Спасибо за тему.
Последний раз редактировалось ЗЮМ 25 ноя 2019, 22:31, всего редактировалось 1 раз.
-
Дмитрий Андреев
- Сообщения: 173
- Зарегистрирован: 06 мар 2017, 09:00
- Страна, Регион, Область: Украина, Харьков
- Город: Комсомольское/Слобожанское
- Благодарил (а): 50 раз
- Поблагодарили: 15 раз
Re: Tederik TRX 140 (насколько мне кажется) помогите с восстановлением
Не спешите прощатьсяЗЮМ писал(а): 25 ноя 2019, 22:20 Спасибо, время скоротал отлично. И стал немного умнее или дурнее. Пока не разобрался.
Я не работаю волшебником...
Я только учусь
Я только учусь
-
ЗЮМ
- Эксперт Гидравлик
- Сообщения: 5718
- Зарегистрирован: 24 окт 2012, 20:41
- Страна, Регион, Область: СССР
- Город: Деревня Малая Малявня
- Откуда: деревня МАЛАЯ МАЛЯВНЯ
- Благодарил (а): 610 раз
- Поблагодарили: 834 раза
Re: Tederik TRX 140 (насколько мне кажется) помогите с восстановлением
мы привыкшие к любым вопросам и действиям нашего правительства. А Дмитрий парень хоть куда, целеустремленный. Мне это нравится.Дмитрий Андреев писал(а): 25 ноя 2019, 22:29Не спешите прощатьсяЗЮМ писал(а): 25 ноя 2019, 22:20 Спасибо, время скоротал отлично. И стал немного умнее или дурнее. Пока не разобрался., у меня есть еще около 10-ти вопросов по этому ТПА, вот только не знаю - глупые они или нет, но это со временем.
![]()
-
Дмитрий Андреев
- Сообщения: 173
- Зарегистрирован: 06 мар 2017, 09:00
- Страна, Регион, Область: Украина, Харьков
- Город: Комсомольское/Слобожанское
- Благодарил (а): 50 раз
- Поблагодарили: 15 раз
Re: Tederik TRX 140 (насколько мне кажется) помогите с восстановлением
Приветствую всех не равнодушных
Сегодня полез глубже (блок клапанов), и увидел следующее...
Исходя из ранее полученной информации - на результат может влиять даже небольшие вмятинки.....
Есть следы выработки,потёртости, кольцо по замену.
Вопрос - пружина родная стоит? Как по мне слабоватая (хоть я в это и не разбераюсь).
Если пружина не родная - прошу подсказать какую установить.
Сегодня полез глубже (блок клапанов), и увидел следующее...
Исходя из ранее полученной информации - на результат может влиять даже небольшие вмятинки.....
Есть следы выработки,потёртости, кольцо по замену.
Вопрос - пружина родная стоит? Как по мне слабоватая (хоть я в это и не разбераюсь).
Если пружина не родная - прошу подсказать какую установить.
Я не работаю волшебником...
Я только учусь
Я только учусь
-
Дмитрий Андреев
- Сообщения: 173
- Зарегистрирован: 06 мар 2017, 09:00
- Страна, Регион, Область: Украина, Харьков
- Город: Комсомольское/Слобожанское
- Благодарил (а): 50 раз
- Поблагодарили: 15 раз
Re: Tederik TRX 140 (насколько мне кажется) помогите с восстановлением
Еще фото.
Я не работаю волшебником...
Я только учусь
Я только учусь
-
Дмитрий Андреев
- Сообщения: 173
- Зарегистрирован: 06 мар 2017, 09:00
- Страна, Регион, Область: Украина, Харьков
- Город: Комсомольское/Слобожанское
- Благодарил (а): 50 раз
- Поблагодарили: 15 раз
Re: Tederik TRX 140 (насколько мне кажется) помогите с восстановлением
И еще.
Я не работаю волшебником...
Я только учусь
Я только учусь
-
ЗЮМ
- Эксперт Гидравлик
- Сообщения: 5718
- Зарегистрирован: 24 окт 2012, 20:41
- Страна, Регион, Область: СССР
- Город: Деревня Малая Малявня
- Откуда: деревня МАЛАЯ МАЛЯВНЯ
- Благодарил (а): 610 раз
- Поблагодарили: 834 раза
Re: Tederik TRX 140 (насколько мне кажется) помогите с восстановлением
Пружина родная. Все на месте.
- ПластСтер
- Сообщения: 2938
- Зарегистрирован: 29 окт 2009, 13:15
- Страна, Регион, Область: Россия
- Город: Стерлитамак
- Откуда: Как все
- Благодарил (а): 466 раз
- Поблагодарили: 809 раз
- Контактная информация:
- ПластСтер
- Сообщения: 2938
- Зарегистрирован: 29 окт 2009, 13:15
- Страна, Регион, Область: Россия
- Город: Стерлитамак
- Откуда: Как все
- Благодарил (а): 466 раз
- Поблагодарили: 809 раз
- Контактная информация:
Re: Tederik TRX 140 (насколько мне кажется) помогите с восстановлением
По регулятору противодавления: Я бы выкинул всю эту приблуду, на Али кспрессе купил вентиль с обратным клапаном и поставил вразрез между трубой и входом. И забыл.
Звать меня, Сергей
-
ЗЮМ
- Эксперт Гидравлик
- Сообщения: 5718
- Зарегистрирован: 24 окт 2012, 20:41
- Страна, Регион, Область: СССР
- Город: Деревня Малая Малявня
- Откуда: деревня МАЛАЯ МАЛЯВНЯ
- Благодарил (а): 610 раз
- Поблагодарили: 834 раза
Re: Tederik TRX 140 (насколько мне кажется) помогите с восстановлением
ПластСтер писал(а): 26 ноя 2019, 17:01 По регулятору противодавления: Я бы выкинул всю эту приблуду, на Али кспрессе купил вентиль с обратным клапаном и поставил вразрез между трубой и входом. И забыл.
-
Дмитрий Андреев
- Сообщения: 173
- Зарегистрирован: 06 мар 2017, 09:00
- Страна, Регион, Область: Украина, Харьков
- Город: Комсомольское/Слобожанское
- Благодарил (а): 50 раз
- Поблагодарили: 15 раз
Re: Tederik TRX 140 (насколько мне кажется) помогите с восстановлением
Можно поставить и такой кран, как времянка, но идею с электронным управлением буду воплощать в реальность.
Если вдруг, не получиться, будем пользоваться ручным
Я не работаю волшебником...
Я только учусь
Я только учусь
- ПластСтер
- Сообщения: 2938
- Зарегистрирован: 29 окт 2009, 13:15
- Страна, Регион, Область: Россия
- Город: Стерлитамак
- Откуда: Как все
- Благодарил (а): 466 раз
- Поблагодарили: 809 раз
- Контактная информация:
Re: Tederik TRX 140 (насколько мне кажется) помогите с восстановлением
Тогда ищите прототип с таким контроллером, имеющим пропорциональник и смотрите как там устроено. У меня нет ни одного ТПА с А80, а на А62, 63 не встречал. Везде крутилки.Дмитрий Андреев писал(а): 26 ноя 2019, 19:33Можно поставить и такой кран, как времянка, но идею с электронным управлением буду воплощать в реальность.![]()
Если вдруг, не получиться, будем пользоваться ручным![]()
Звать меня, Сергей
-
Дмитрий Андреев
- Сообщения: 173
- Зарегистрирован: 06 мар 2017, 09:00
- Страна, Регион, Область: Украина, Харьков
- Город: Комсомольское/Слобожанское
- Благодарил (а): 50 раз
- Поблагодарили: 15 раз
Re: Tederik TRX 140 (насколько мне кажется) помогите с восстановлением
[/quote]
Тогда ищите прототип с таким контроллером, имеющим пропорциональник и смотрите как там устроено. У меня нет ни одного ТПА с А80, а на А62, 63 не встречал. Везде крутилки.
[/quote]
Работаю над этим, пока ни-че-го.
Тогда ищите прототип с таким контроллером, имеющим пропорциональник и смотрите как там устроено. У меня нет ни одного ТПА с А80, а на А62, 63 не встречал. Везде крутилки.
[/quote]
Работаю над этим, пока ни-че-го.
Я не работаю волшебником...
Я только учусь
Я только учусь
-
Дмитрий Андреев
- Сообщения: 173
- Зарегистрирован: 06 мар 2017, 09:00
- Страна, Регион, Область: Украина, Харьков
- Город: Комсомольское/Слобожанское
- Благодарил (а): 50 раз
- Поблагодарили: 15 раз
Re: Tederik TRX 140 (насколько мне кажется) помогите с восстановлением
Пока с противодавлением затишье - задам следующий вопрос.
Это больше по электрике....
В ходе эксплуатации стали плохо реагировать кнопки (впрыск, смыкание, розкрытие формы, загрузка, подвод, отвод телеги... в общем самые часто нажимаемые).
Можно что то придумать? Или отдельно клавиатуру заказывать?
Может у кого то опыт был?
Поделитесь.
Это больше по электрике....
В ходе эксплуатации стали плохо реагировать кнопки (впрыск, смыкание, розкрытие формы, загрузка, подвод, отвод телеги... в общем самые часто нажимаемые).
Можно что то придумать? Или отдельно клавиатуру заказывать?
Может у кого то опыт был?
Поделитесь.
Я не работаю волшебником...
Я только учусь
Я только учусь
- ПластСтер
- Сообщения: 2938
- Зарегистрирован: 29 окт 2009, 13:15
- Страна, Регион, Область: Россия
- Город: Стерлитамак
- Откуда: Как все
- Благодарил (а): 466 раз
- Поблагодарили: 809 раз
- Контактная информация:
Re: Tederik TRX 140 (насколько мне кажется) помогите с восстановлением
Если только для одной двух операций, иголочкой проткнуть, и замкнуть. А так, лучше не рисковать, заменить. Можно поискать отдельно кнопки, без монитора и плат. На М-8-10 встречал, а вот на М-5С-6С не доводилось.Дмитрий Андреев писал(а): 26 ноя 2019, 20:28 Пока с противодавлением затишье - задам следующий вопрос.
Это больше по электрике....
В ходе эксплуатации стали плохо реагировать кнопки (впрыск, смыкание, розкрытие формы, загрузка, подвод, отвод телеги... в общем самые часто нажимаемые).
Можно что то придумать? Или отдельно клавиатуру заказывать?
Может у кого то опыт был?
Поделитесь.
Звать меня, Сергей
-
Дмитрий Андреев
- Сообщения: 173
- Зарегистрирован: 06 мар 2017, 09:00
- Страна, Регион, Область: Украина, Харьков
- Город: Комсомольское/Слобожанское
- Благодарил (а): 50 раз
- Поблагодарили: 15 раз
Re: Tederik TRX 140 (насколько мне кажется) помогите с восстановлением
[/quote]
Если только для одной двух операций, иголочкой проткнуть, и замкнуть. А так, лучше не рисковать, заменить. Можно поискать отдельно кнопки, без монитора и плат. На М-8-10 встречал, а вот на М-5С-6С не доводилось.
[/quote]
Понял, спасибо. Буду искать.
Монитор у нас тоже уже уставший - бледный. Одно яркость добавляем. Может есть смысл купить полностью панель?
Или это геморрой?
Если только для одной двух операций, иголочкой проткнуть, и замкнуть. А так, лучше не рисковать, заменить. Можно поискать отдельно кнопки, без монитора и плат. На М-8-10 встречал, а вот на М-5С-6С не доводилось.
[/quote]
Понял, спасибо. Буду искать.
Монитор у нас тоже уже уставший - бледный. Одно яркость добавляем. Может есть смысл купить полностью панель?
Или это геморрой?
Я не работаю волшебником...
Я только учусь
Я только учусь
- ПластСтер
- Сообщения: 2938
- Зарегистрирован: 29 окт 2009, 13:15
- Страна, Регион, Область: Россия
- Город: Стерлитамак
- Откуда: Как все
- Благодарил (а): 466 раз
- Поблагодарили: 809 раз
- Контактная информация:
Re: Tederik TRX 140 (насколько мне кажется) помогите с восстановлением
Если только для одной двух операций, иголочкой проткнуть, и замкнуть. А так, лучше не рисковать, заменить. Можно поискать отдельно кнопки, без монитора и плат. На М-8-10 встречал, а вот на М-5С-6С не доводилось.
[/quote]
Понял, спасибо. Буду искать.
Монитор у нас тоже уже уставший - бледный. Одно яркость добавляем. Может есть смысл купить полностью панель?
Или это геморрой?
[/quote]
Да нет, на Али что то в районе 15-20 т.р с доставкой. Приезжает как правило, дней за 30-40
Звать меня, Сергей
- ПластСтер
- Сообщения: 2938
- Зарегистрирован: 29 окт 2009, 13:15
- Страна, Регион, Область: Россия
- Город: Стерлитамак
- Откуда: Как все
- Благодарил (а): 466 раз
- Поблагодарили: 809 раз
- Контактная информация:
-
Дмитрий Андреев
- Сообщения: 173
- Зарегистрирован: 06 мар 2017, 09:00
- Страна, Регион, Область: Украина, Харьков
- Город: Комсомольское/Слобожанское
- Благодарил (а): 50 раз
- Поблагодарили: 15 раз
Re: Tederik TRX 140 (насколько мне кажется) помогите с восстановлением
[/quote]
Да нет, на Али что то в районе 15-20 т.р с доставкой. Приезжает как правило, дней за 30-40
[/quote]
С этим тоже все понятно, спасибо за наводку! Будем брать
Следующая проблема : на ТПА установлено 2 линейки, которые не корректно показывают значения (положение толкателя и положение шнека)...
Толкатель прыгает в пределах 0,1-1,1 мм (хотя в меню толкателей режим и кратность стоит по "0") , что иногда приводит к ошибке или зависанию цикла на втягивании толкателя (толи ЗХПП...) в общем не могу сказать точно, но суть думаю понятна.... Через недльку выложу видео.
С линейкой, которая показывает положение шнека - ситуация по печальнее.... Значения могут прыгать в диапазоне 2-10 мм, что в свою очередь приводит к не доливам не больших деталей. К примеру: на детальку требуется 18 мм загрузки и мы задаем 18 мм - то 1 раз в 5-8 циклов деталь может быть не долита или с дефектом. Данную проблему решаем за счет подушки 10-15 мм.
Я считаю это не нормально! Но результаты приноит
Можно что то сделать с этими линейками? Калибровка? Чистка? Или под замену?
Да нет, на Али что то в районе 15-20 т.р с доставкой. Приезжает как правило, дней за 30-40
[/quote]
С этим тоже все понятно, спасибо за наводку! Будем брать
Следующая проблема : на ТПА установлено 2 линейки, которые не корректно показывают значения (положение толкателя и положение шнека)...
Толкатель прыгает в пределах 0,1-1,1 мм (хотя в меню толкателей режим и кратность стоит по "0") , что иногда приводит к ошибке или зависанию цикла на втягивании толкателя (толи ЗХПП...) в общем не могу сказать точно, но суть думаю понятна.... Через недльку выложу видео.
С линейкой, которая показывает положение шнека - ситуация по печальнее.... Значения могут прыгать в диапазоне 2-10 мм, что в свою очередь приводит к не доливам не больших деталей. К примеру: на детальку требуется 18 мм загрузки и мы задаем 18 мм - то 1 раз в 5-8 циклов деталь может быть не долита или с дефектом. Данную проблему решаем за счет подушки 10-15 мм.
Я считаю это не нормально! Но результаты приноит
Можно что то сделать с этими линейками? Калибровка? Чистка? Или под замену?
Я не работаю волшебником...
Я только учусь
Я только учусь
- ПластСтер
- Сообщения: 2938
- Зарегистрирован: 29 окт 2009, 13:15
- Страна, Регион, Область: Россия
- Город: Стерлитамак
- Откуда: Как все
- Благодарил (а): 466 раз
- Поблагодарили: 809 раз
- Контактная информация:
Re: Tederik TRX 140 (насколько мне кажется) помогите с восстановлением
Мы их и чистили и паяли, и уговаривали и даже целовали, но все равно заменили. 0.1 мм наверное не поймаете, ну а 1-2 мм вполне реально. Ход толкателя который показывает на мониторе и естьна самом деле, может не совпадать, его нужно регулировать по прессформе. То же самое и с впрыском. Мы выставляем по подушке, но разброс 10мм это слишком. На Али все это есть.Дмитрий Андреев писал(а): 27 ноя 2019, 06:56 Следующая проблема : на ТПА установлено 2 линейки, которые не корректно показывают значения (положение толкателя и положение шнека)...
Толкатель прыгает в пределах 0,1-1,1 мм (хотя в меню толкателей режим и кратность стоит по "0") , что иногда приводит к ошибке или зависанию цикла на втягивании толкателя (толи ЗХПП...) в общем не могу сказать точно, но суть думаю понятна.... Через недльку выложу видео.
С линейкой, которая показывает положение шнека - ситуация по печальнее.... Значения могут прыгать в диапазоне 2-10 мм, что в свою очередь приводит к не доливам не больших деталей. К примеру: на детальку требуется 18 мм загрузки и мы задаем 18 мм - то 1 раз в 5-8 циклов деталь может быть не долита или с дефектом. Данную проблему решаем за счет подушки 10-15 мм.
Я считаю это не нормально! Но результаты приноит![]()
![]()
Можно что то сделать с этими линейками? Калибровка? Чистка? Или под замену?
Звать меня, Сергей
-
Дмитрий Андреев
- Сообщения: 173
- Зарегистрирован: 06 мар 2017, 09:00
- Страна, Регион, Область: Украина, Харьков
- Город: Комсомольское/Слобожанское
- Благодарил (а): 50 раз
- Поблагодарили: 15 раз
Re: Tederik TRX 140 (насколько мне кажется) помогите с восстановлением
[/quote]
Мы их и чистили и паяли, и уговаривали и даже целовали, но все равно заменили. 0.1 мм наверное не поймаете, ну а 1-2 мм вполне реально. Ход толкателя который показывает на мониторе и естьна самом деле, может не совпадать, его нужно регулировать по прессформе. То же самое и с впрыском. Мы выставляем по подушке, но разброс 10мм это слишком. На Али все это есть.
[/quote]
Да, мне это только что рассказали, ищем.
Не пойму что Вы имеете ввиду под "его нужно регулировать по прессформе"?
Почти во всех случаях мы производим детали в режиме полу автомат, без толкателей (толкатель отключен).
Линейка на смыкании (показует положение продвижной плиты), амортизация её может влиять на не корректное смыкание, защиту пресс формы и т.д.? Или это кривое движение подвижной плиты
от того, что-то с пропорциональниками?
Мы их и чистили и паяли, и уговаривали и даже целовали, но все равно заменили. 0.1 мм наверное не поймаете, ну а 1-2 мм вполне реально. Ход толкателя который показывает на мониторе и естьна самом деле, может не совпадать, его нужно регулировать по прессформе. То же самое и с впрыском. Мы выставляем по подушке, но разброс 10мм это слишком. На Али все это есть.
[/quote]
Да, мне это только что рассказали, ищем.
Не пойму что Вы имеете ввиду под "его нужно регулировать по прессформе"?
Почти во всех случаях мы производим детали в режиме полу автомат, без толкателей (толкатель отключен).
Линейка на смыкании (показует положение продвижной плиты), амортизация её может влиять на не корректное смыкание, защиту пресс формы и т.д.? Или это кривое движение подвижной плиты
от того, что-то с пропорциональниками?
Я не работаю волшебником...
Я только учусь
Я только учусь
- Woolfy
- Сообщения: 834
- Зарегистрирован: 08 июн 2018, 08:12
- Страна, Регион, Область: Россия
- Город: Новосибирск
- Благодарил (а): 707 раз
- Поблагодарили: 354 раза
Re: Tederik TRX 140 (насколько мне кажется) помогите с восстановлением
При восстановлении ТПА хорошо бы получить качественные фото управления (электроотсек с контроллером). Вы пока выложили панель оператора и крышку контроллера, причём в неудачных ракурсах. Эксплуатация контроллера без крышки - дурной тон, т.к. высока вероятность повреждения. Перед решением проблем с гидравликой вы должны быть уверены, что электрическая часть работает идеально.
Начать можно с блоков питания 24 В. Обычно их два разной мощности, но одного производителя ("MEANWELL"). Подключите на выходы блоков (24 В, поочерёдно) мультиметр и понаблюдайте за выходным напряжением при работе станка. Оно может меняться только на десятые доли вольта. Если оно при работе "просаживается", то можете поменять, хотя я просто делаю профилактический ремонт (и на новых блоках тоже). Ещё я переделываю их на питание только от 220 Вольт. Для ремонта понадобятся хорошие фото платы блока питания с двух сторон со снятыми крышкой и основанием. Ну и опытный ремонтник электроники.
В контроллере электромагнитные реле, управляющие пускателями нагревателей, можно заменить на твёрдотельные реле (я сам их делаю). Катушки пускателей хорошо бы зашунтировать RC-цепями (плёночный 0,22 мкФ х 630 В + 470 Ом 0,5 Вт). Параллельно силовым контактам пускателей тоже можно повесить RC-цепи (0,47 мкФ х 630 В + 560 Ом 2 Вт) - дольше жить будут.
На пускатели электродвигателя гидронасоса тоже можно повесить RC-цепи (и на катушки тоже) - дольше проживут. Китайцы их иногда ставят, а иногда - нет. Снять могут и при эксплуатации ТПА.
Кнопки на панели оператора я просто меняю на новые нужной высоты - бывает разная (покупаются в ближайшем магазине радиодеталей) . Индикатор сначала можно просто помыть от пыли (и защитное стекло тоже).
Датчики линейного перемещения ("линейки") у вас, скорее всего, слегка изношены. Лучше поменять. Кстати, начальная позиция не обязательно должна находиться в крайнем положении. Можно сместить на 5 - 10 мм. В меню есть программная установка "нуля" этих датчиков. На вкладке конфигурации станка может быть и установка длины этих датчиков (на А62, по крайней мере, точно есть).
В электроотсеке избавьтесь от скруток проводов. Разрывы обжимаете в одну гильзу и умеренно зажимаете в клеммной колодке.
Выложите фото вкладок ВХОДЫ-ВЫХОДЫ (Inputs/Outputs) на английском. Русский перевод бывает весьма чуден.
Ну, пока вроде всё. Текущая работа не связана с ТПА, могу получить доступ к А80, но оптимально в выходные.
Начать можно с блоков питания 24 В. Обычно их два разной мощности, но одного производителя ("MEANWELL"). Подключите на выходы блоков (24 В, поочерёдно) мультиметр и понаблюдайте за выходным напряжением при работе станка. Оно может меняться только на десятые доли вольта. Если оно при работе "просаживается", то можете поменять, хотя я просто делаю профилактический ремонт (и на новых блоках тоже). Ещё я переделываю их на питание только от 220 Вольт. Для ремонта понадобятся хорошие фото платы блока питания с двух сторон со снятыми крышкой и основанием. Ну и опытный ремонтник электроники.
В контроллере электромагнитные реле, управляющие пускателями нагревателей, можно заменить на твёрдотельные реле (я сам их делаю). Катушки пускателей хорошо бы зашунтировать RC-цепями (плёночный 0,22 мкФ х 630 В + 470 Ом 0,5 Вт). Параллельно силовым контактам пускателей тоже можно повесить RC-цепи (0,47 мкФ х 630 В + 560 Ом 2 Вт) - дольше жить будут.
На пускатели электродвигателя гидронасоса тоже можно повесить RC-цепи (и на катушки тоже) - дольше проживут. Китайцы их иногда ставят, а иногда - нет. Снять могут и при эксплуатации ТПА.
Кнопки на панели оператора я просто меняю на новые нужной высоты - бывает разная (покупаются в ближайшем магазине радиодеталей) . Индикатор сначала можно просто помыть от пыли (и защитное стекло тоже).
Датчики линейного перемещения ("линейки") у вас, скорее всего, слегка изношены. Лучше поменять. Кстати, начальная позиция не обязательно должна находиться в крайнем положении. Можно сместить на 5 - 10 мм. В меню есть программная установка "нуля" этих датчиков. На вкладке конфигурации станка может быть и установка длины этих датчиков (на А62, по крайней мере, точно есть).
В электроотсеке избавьтесь от скруток проводов. Разрывы обжимаете в одну гильзу и умеренно зажимаете в клеммной колодке.
Выложите фото вкладок ВХОДЫ-ВЫХОДЫ (Inputs/Outputs) на английском. Русский перевод бывает весьма чуден.
Ну, пока вроде всё. Текущая работа не связана с ТПА, могу получить доступ к А80, но оптимально в выходные.
- За это сообщение автора Woolfy поблагодарили (всего 3):
- Дмитрий Андреев • Мулланур • ПластСтер
- Рейтинг: 15%
С уважением. Белый и пушистый, а не серый и лохматый.
-
Дмитрий Андреев
- Сообщения: 173
- Зарегистрирован: 06 мар 2017, 09:00
- Страна, Регион, Область: Украина, Харьков
- Город: Комсомольское/Слобожанское
- Благодарил (а): 50 раз
- Поблагодарили: 15 раз
Re: Tederik TRX 140 (насколько мне кажется) помогите с восстановлением
ОГО!! Столько матюковWoolfy писал(а): 27 ноя 2019, 17:49 При восстановлении ТПА хорошо бы получить качественные фото управления (электроотсек с контроллером). Вы пока выложили панель оператора и крышку контроллера, причём в неудачных ракурсах. Эксплуатация контроллера без крышки - дурной тон, т.к. высока вероятность повреждения. Перед решением проблем с гидравликой вы должны быть уверены, что электрическая часть работает идеально.
Начать можно с блоков питания 24 В. Обычно их два разной мощности, но одного производителя ("MEANWELL"). Подключите на выходы блоков (24 В, поочерёдно) мультиметр и понаблюдайте за выходным напряжением при работе станка. Оно может меняться только на десятые доли вольта. Если оно при работе "просаживается", то можете поменять, хотя я просто делаю профилактический ремонт (и на новых блоках тоже). Ещё я переделываю их на питание только от 220 Вольт. Для ремонта понадобятся хорошие фото платы блока питания с двух сторон со снятыми крышкой и основанием. Ну и опытный ремонтник электроники.![]()
В контроллере электромагнитные реле, управляющие пускателями нагревателей, можно заменить на твёрдотельные реле (я сам их делаю). Катушки пускателей хорошо бы зашунтировать RC-цепями (плёночный 0,22 мкФ х 630 В + 470 Ом 0,5 Вт). Параллельно силовым контактам пускателей тоже можно повесить RC-цепи (0,47 мкФ х 630 В + 560 Ом 2 Вт) - дольше жить будут.
На пускатели электродвигателя гидронасоса тоже можно повесить RC-цепи (и на катушки тоже) - дольше проживут. Китайцы их иногда ставят, а иногда - нет. Снять могут и при эксплуатации ТПА.
Кнопки на панели оператора я просто меняю на новые нужной высоты - бывает разная (покупаются в ближайшем магазине радиодеталей) . Индикатор сначала можно просто помыть от пыли (и защитное стекло тоже).
Датчики линейного перемещения ("линейки") у вас, скорее всего, слегка изношены. Лучше поменять. Кстати, начальная позиция не обязательно должна находиться в крайнем положении. Можно сместить на 5 - 10 мм. В меню есть программная установка "нуля" этих датчиков. На вкладке конфигурации станка может быть и установка длины этих датчиков (на А62, по крайней мере, точно есть).
В электроотсеке избавьтесь от скруток проводов. Разрывы обжимаете в одну гильзу и умеренно зажимаете в клеммной колодке.
Выложите фото вкладок ВХОДЫ-ВЫХОДЫ (Inputs/Outputs) на английском. Русский перевод бывает весьма чуден.
Ну, пока вроде всё. Текущая работа не связана с ТПА, могу получить доступ к А80, но оптимально в выходные.
Все будем приводить в порядок! Все замечания с Вашей стороны учту и ликвидирую, приведу в божески вид!
Пускатели заменены на ТТР-ки (частично
Панель отдал в ремонт электрику - сказал заменит.
Линейки под замену.
По А 80 - пожалуйста, по возможности покажите.
Насколько я правильно понял это в меню станка, выложу через неделю, как получу обратно Панель управления.Выложите фото вкладок ВХОДЫ-ВЫХОДЫ (Inputs/Outputs) на английском
Я не работаю волшебником...
Я только учусь
Я только учусь
Кто сейчас на конференции
Сейчас этот форум просматривают: нет зарегистрированных пользователей и 3 гостя